



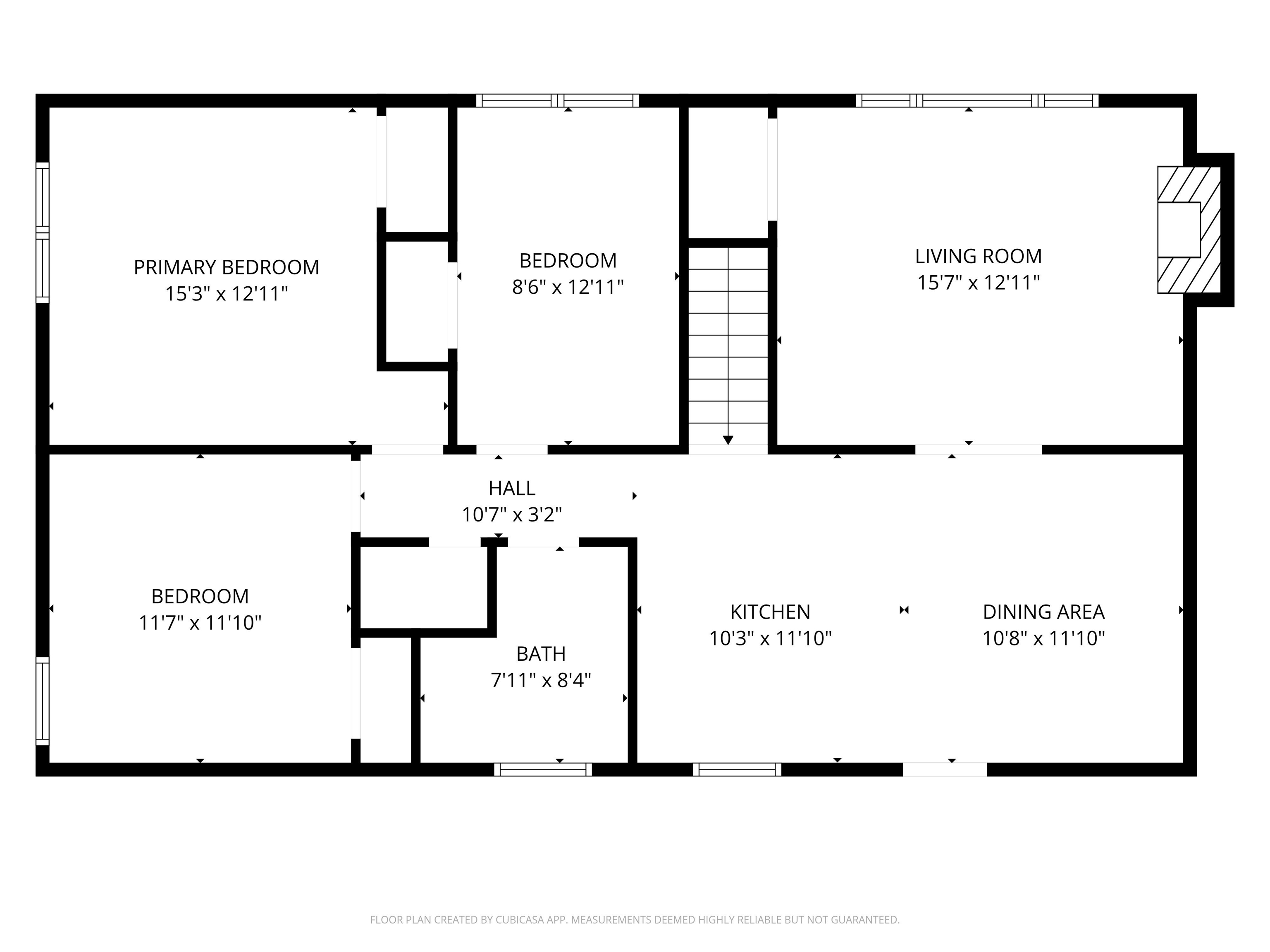
125 Thompson St is close to downtown, moments from Ashland town beach on Little Squam, and just up the hill from the Squam River. This likeable 1969 ranch sits atop its 1.7-acre lot with 120 feet of frontage on Thompson Street and the Squam River. From its elevated position, you’ll enjoy the ridgeline views of Whitten Woods across the valley. The home includes three bedrooms, an unfinished walkout heated basement, and a beautifully renovated full bath completed in August 2025. This update adds even more “cuteness” to its already inviting feel. Step through the main door into the combined kitchen, dining, and living area, where a fireplace immediately brings warmth and comfort. The kitchen is fully functional as it is, with plenty of opportunity for your personal upgrades. Recent improvements include a new Bosch dishwasher, a fully serviced furnace, and a new oil tank. The full walkout basement consists of a laundry hookup and provides additional space to expand the home’s usability. With so many essentials already in place, this property is ready for its next owner. Make your move before cold weather arrives and settle in just in time to get warm and cozy before the New England winter arrives. It is being sold as-is/as-seen, with inspections welcome for buyers’ information only.
| an hour ago | Listing updated with changes from the MLS® | |
| 3 hours ago | Listing first seen on site |
Compare listings
Compare
Did you know? You can invite friends and family to your search. They can join your search, rate and discuss listings with you.