



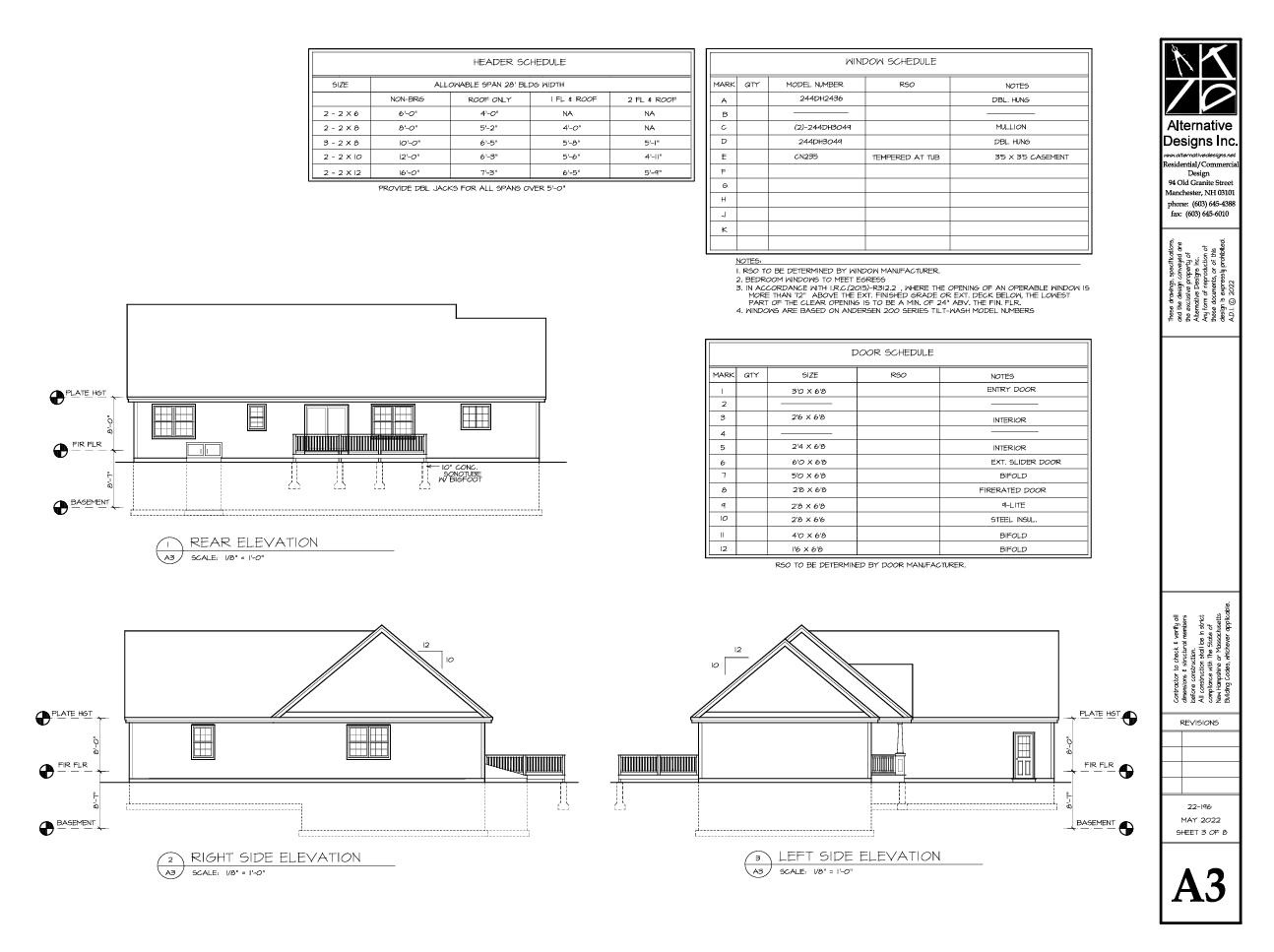
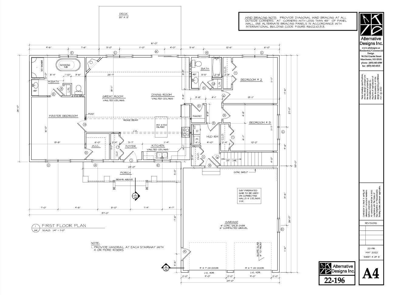
Stunning new construction ranch to be built on a beautiful 5.39-acre lot in Deerfield, NH. This thoughtfully designed home will feature 3 bedrooms and 2 full baths, with an inviting open-concept floor plan perfect for modern living. The spacious kitchen flows seamlessly into the dining and living areas, creating an ideal space for entertaining and everyday comfort. Enjoy hardwood floors, quality finishes, and abundant natural light throughout. The primary suite offers a private retreat with its own bath and generous closet space. Set on a picturesque parcel with plenty of room for outdoor enjoyment, this home combines peaceful country living with convenient access to nearby amenities and commuter routes. A wonderful opportunity to build your dream home in a desirable location.
| 5 hours ago | Listing updated with changes from the MLS® | |
| 5 hours ago | Listing first seen on site |
Compare listings
Compare